Здравствуйте.
Участок в Подмосковье. Есть небольшой уклон, высокая часть получается где граница 6 метров.
Въезд на участок с любого места дороги. Участок тупиковый. Только по правому углу есть небольшое ограничение в виде фонарного столба.
Сад и огород хотелось бы, но не так важен. Кустарники думала разместить уже в дальнейшем между домом и забором.
Пока есть проблема с борщевиком, вряд ли получится обустраивать огород. При использовании агрессивных гербицидов там вообще ничего не будет расти пару лет. Сейчас больше изучаю, какие растения способны выдавить борщевик.
Как спроектировать участок 8,9 соток трапециевидной формы?
Схема участка:

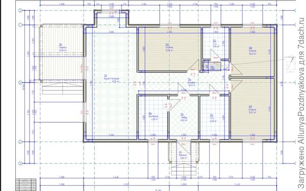
План дома

На участке хотелось бы расположить гараж на 2 машины, сам дом, зону барбекю (летнюю кухню) и, возможно, на будущее детскую зону. Сейчас участок свободен от всего, кроме борщевика :(
Это может быть полезным:
У вас есть свой дачный вопрос? Задайте его нашим экспертам и опытным дачникам.
Задать вопрос
Задать вопрос
Все ответы и комментарии (11)
Здравствуйте, Аллуня! Рад буду помочь Вам графическим советом. Почему участок затемненный? Покажите на плане, что даёт затемнение, деревья, строения?
Ждём уточнений на вопросы.
Ждём уточнений на вопросы.
1
Здравствуйте!
Затемнение дают деревья. Через дорогу находится лес.
Вокруг участка тоже везде деревья (березы метров по 8 в высоту и ивняк по 3-5 метров. Строений нет никаких.
Скорее всего за счет борщевика участок немного сыроват после дождя.
Буду рада помощи. Уже пыталась сделать сама схемы, но не получается рационально все разместить.
Затемнение дают деревья. Через дорогу находится лес.
Вокруг участка тоже везде деревья (березы метров по 8 в высоту и ивняк по 3-5 метров. Строений нет никаких.
Скорее всего за счет борщевика участок немного сыроват после дождя.
Буду рада помощи. Уже пыталась сделать сама схемы, но не получается рационально все разместить.
Аллуня, спасибо! Понятно, что лес рядом, но по ориентации он не затеняет участок. Может быть, Вы покажете свои наброски, чтобы нам работать в одном направлении?
Возможно я немного не правильно определила ориентацию, но солнце точно садится со стороны леса.
На наброске дописала где закат солнца.
На кадастре кажется что один угол 90 градусов. По факту это не так. Геодезист определил границы участка и верхний угол ближе как раз к схеме участка.
С учетом 3 метров от забора для застройки получается ощутимый кусок земли с которым не понятно что делать
Набросок
![Набросок]()
Фото со спутника с границами кадастра. 1528
На наброске дописала где закат солнца.
На кадастре кажется что один угол 90 градусов. По факту это не так. Геодезист определил границы участка и верхний угол ближе как раз к схеме участка.
С учетом 3 метров от забора для застройки получается ощутимый кусок земли с которым не понятно что делать
Набросок

Фото со спутника с границами кадастра. 1528
Здравствуйте, Аллуня! Давайте посмотрим, что получилось, на первом эскизном этапе, где мы собрали все исходные данные и проанализировали их в графике. Ориентируясь на кадастровую карту, более точно показана ориентация по сторонам горизонта. Также пропорции участка на Вашей схеме немного искажены, соответственно, и привязка дома не точна. Опять же, я обращался к кадастровой карте, и к линейке, указанной Вами.
По этой причине, дом я показал на эскизе с отступом в 5 метров от фронтального забора, и сдвинул его левее, относительно Вашей схемы. Это позволит открыть солнцу правый угол территории и использовать его более эффективно. На эскизе намечена тень от жилого дома после 6 часов вечера. Также, замечу, что тень от одноэтажного дома будет составлять примерно 5-6 метров (зависит от высота конька) в 11.00 утра. Примерно по такому же принципу, Вы можете отследить тень от леса.
После привязки дома, формируем придомовую территорию с площадками и дорожками, расходящимися по всему участку. В непосредственной близости, от будущей террасы, на эскизе показаны две зоны отдыха (детского и взрослого), летняя кухня, которая удобно расположена от источника водозабора – колодца.
Хозяйственный блок переехал в узкую торцевую часть участка, с грядками рядом (в далекой перспективе, когда решится проблема с борщевиком), на высокой точке рельефа. Тем самым освободил освещенное место для грядок и ландшафта, отбросив тень в сторону забора.
Надеюсь, мои советы помогут Вам взглянуть на возможную схему развития участка, отсечь потом лишнее и добавить свои пожелания. Удачи!
Эскиз планировки трапециевидного участка
По этой причине, дом я показал на эскизе с отступом в 5 метров от фронтального забора, и сдвинул его левее, относительно Вашей схемы. Это позволит открыть солнцу правый угол территории и использовать его более эффективно. На эскизе намечена тень от жилого дома после 6 часов вечера. Также, замечу, что тень от одноэтажного дома будет составлять примерно 5-6 метров (зависит от высота конька) в 11.00 утра. Примерно по такому же принципу, Вы можете отследить тень от леса.
После привязки дома, формируем придомовую территорию с площадками и дорожками, расходящимися по всему участку. В непосредственной близости, от будущей террасы, на эскизе показаны две зоны отдыха (детского и взрослого), летняя кухня, которая удобно расположена от источника водозабора – колодца.
Хозяйственный блок переехал в узкую торцевую часть участка, с грядками рядом (в далекой перспективе, когда решится проблема с борщевиком), на высокой точке рельефа. Тем самым освободил освещенное место для грядок и ландшафта, отбросив тень в сторону забора.
Надеюсь, мои советы помогут Вам взглянуть на возможную схему развития участка, отсечь потом лишнее и добавить свои пожелания. Удачи!
Эскиз планировки трапециевидного участка
1
Он ровный или с уклоном?
В каком месте у вас въезд на участок?
И ещё — вы не планируете никакого сада и огорода?