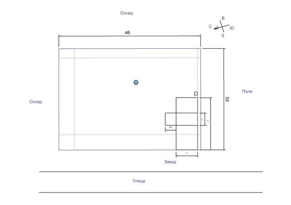
Как грамотно распланировать ровный участок 46 на 33 метра?
Участок ровный, грунтовые воды достаточно близко. В доме планируется периодическое проживание большой семьи. Хотелось бы также расположить небольшой огород для овощей, зелени и ягод.

План участка
Это может быть полезным:
У вас есть свой дачный вопрос? Задайте его нашим экспертам и опытным дачникам.
Задать вопрос
Задать вопрос
Все ответы и комментарии (1)
Наверное, это ошибка, и одного проекта будет достаточно.
0