Как грамотно сделать планировку бани?
Размер сруба 5*6 м по центрам, 2-х метровая веранда делит сруб, и остаётся под баню 4*5 м.
Хотел (как у многих видел) это помещение разделить напополам — получится две по 4*2.5 м, половина — предбанник с топкой из него, а вторая — парная и помывочная. Но что-то мне не нравится, места мало, если ещё бак расширительный будет в парной, то совсем вокруг него крутиться придётся. Вот и думаю про другую планировку.

Фото с сайта domofond.ru
Можно из веранды в предбанник сделать не дверь, а проём. На фото это не мой сруб, его смысл похож. Также сделали дверь для входа в центре на веранду. Потом веранда 2*5 м, справа будет лестница на второй холодный летний этаж. А слева вход в банное помещение.
Как лучше всего сделать планировку?
У вас есть свой дачный вопрос? Задайте его нашим экспертам и опытным дачникам.
Задать вопрос
Задать вопрос
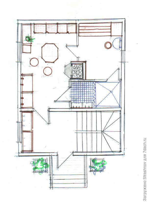
план бани (первый этаж)
Скажите пожалуйста две двери в парную — это не много?
Может оставить только дверь в душ, а в предбанник не делать.
И печь подвинуть больше в предбанник, внутри парилки ещё будет ведь расширительный бак с горячей водой.
Как думаете?
Две двери в парную, может и не так страшны, при их хорошей теплоизоляции. Но я рассматривал несколько вариантов планировки, в том числе анфиладной, когда все помещения вдоль одной оси идут, но для этого ширина бани маловата, помещения получатся очень узкими, по 1,7 м. Поэтому, мой совет, сделать Г-образную планировку, как показано на плане. Или включить в помещение бани часть веранды, тогда, конечно пространства будет больше для деятельности. Как Вы относитесь к такому варианту? Если да, то можно еще над одним планом подумать.
А пока прикладываю к тексту план, где печь вынесена вперед, но ненамного, за печью получаем метр до двери.
второй вариант плана бани
Да, вот так и хотелось бы выдвинуть печь, а дверь в предбанник всё-таки будет давать много тепла из парилки. Лучше оставить одну через душевую.
Очень интересен вариант с включением части веранды.
Парилку можно будет увеличить наверно, ведь кроме печи, кладки вокруг хотелось бы бак с горячей водой разместить и чтобы он не мешал.
Был в разных частных банях и этот бак всегда как-то не удел, мешает, можно случайно прислониться. А выносить его из парной не хочется, всё-таки нравится влажная парная, не сауна.
Если не сложно посмотрите над этим своим предложением.
Роман.
Поэтому попробовал «подвигать» помещение душевой, уменьшив его немного, фактически до минимума, что дало лишние полметра кв. комнате отдыха.
вариант с маленькой душевой