Спасибо за ответ!
Дом выполнен из сруба. Кухня и коридор -кирпичные пристройки.
Котёл 1957 года, в этом году предписание написано. Труба идёт вверх от колонки-колонка в кухне.
Дом умершей тёти.
Воздуха хватает, вроде бы.
Да, это последующие пристройки. Поэтапно достраивалось.
В комнате 17,2 раньше стояла печь, давно. Но уже лет 20 как разобрана.
Как лучше сделать переделку старого дома?
Что мы хотим от дома? Удобную спальню нам с мужем, дочке, чтобы удобно было, когда она приезжает. Гостиную, кухню и ванную. По сути других требований особах нет, но запуталась вконец, как это сделать.
Окна заменены на пластиковые, но расположение их в некоторых комнатах неудобно, а менять расположение проблемно :(
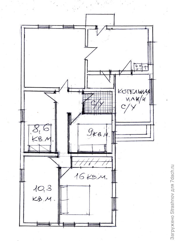
Вероятно, придется (заставят?) делать котельную…? Дом из сруба. Строился поэтапно. Кухня и коридор — из кирпича. Кухня: котёл помечен в углу справа, колонка на той стене, где входная дверь. Муж хочет убрать дверь в коридоре и оставить одну, но тогда дверь в кухне (на улицу) придётся как-то расширять. Стоит это делать или нет?

План участка

План дома

Общий вид дома

Общий вид дома
Это может быть полезным:
У вас есть свой дачный вопрос? Задайте его нашим экспертам и опытным дачникам.
Задать вопрос
Задать вопрос
Все ответы и комментарии (32)
1
В комнате 17,2 мы обычно кушали. Там стоит стенка, круглый стол, тв.
Там я хочу, чтобы была гостиная. Диван, маленький столик, в стороне круглый стол и тв. Очень удобно когда гости, не водить их по спальням. Как-то так.
Но в целом слабо представляю что делать. Вроде площадь большая, а фантазия иссякла совсем
Там я хочу, чтобы была гостиная. Диван, маленький столик, в стороне круглый стол и тв. Очень удобно когда гости, не водить их по спальням. Как-то так.
Но в целом слабо представляю что делать. Вроде площадь большая, а фантазия иссякла совсем
Добрый вечер в начале ноября Наталия! Так как сообщение от вас о пожелании расположить гостиную в комнате площадью 17,2 квадратных метров пришло только 56 минут назад, то эта идея не нашла своего отражения в предлагаемой схеме, «рожденной» несколько ранее. В предлагаемой схеме учтены все ваши пожелания, слово в слово. Хочу обратить ваше внимание на газовый котел. Предлагаю принципиально отказаться от имеющегося вертикального дымохода в пользу коаксиального дымохода, устанавливаемого горизонтально. Он отлично подходит для двухконтурного котла с закрытой камерой сгорания. В таком случае вопрос о специальном помещении для котла исключается по определению. Я вижу, на сайте, что наш замечательный архитектор Виктор Григорьевич обратил свое внимание на ваш вопрос. Он помог десяткам, если не сотням наших дачникам в проектировании и домов, и прилегающего ландшафта. С профессиональным интересом ожидаю его планировочное решение вашего бревенчатого сруба.
Предлагаемая схема
![Предлагаемая схема]()
Коаксиальный дымоход
![Коаксиальный дымоход]()
Предлагаемая схема

Коаксиальный дымоход

3
Спасибо за ответ! Я в этом доме выросла.
Сам дом, вроде как нам строители сказали, что неплох ещё.
Я его люблю, по крайней мере.
Дом тёплый. Светлый.
Буду ждать ещё варианты.
Ваш вариант хорош, но там нужно учитывать, что основная входная дверь сейчас из кухни на улицу. Дверь из коридора чаще закрыта…
Если делать кухню, бы 17 метрах, придётся переносить газ и трубы туда вести. Я пока не знаю проблема это или нет. И воду проводить придётся и канализацию делать …
Сам дом, вроде как нам строители сказали, что неплох ещё.
Я его люблю, по крайней мере.
Дом тёплый. Светлый.
Буду ждать ещё варианты.
Ваш вариант хорош, но там нужно учитывать, что основная входная дверь сейчас из кухни на улицу. Дверь из коридора чаще закрыта…
Если делать кухню, бы 17 метрах, придётся переносить газ и трубы туда вести. Я пока не знаю проблема это или нет. И воду проводить придётся и канализацию делать …
Отвечаю коротко, конспективно. Судя по схеме, я решил, что выход на улицу запроектирован из комнаты площадью 16,4 квадратных метров… О газе. Газовые трубы должны входить в здание максимально близко к теплогенератору. То есть, котел вы оставляете на прежнем месте, а по внешней стене «пускаете» трубу, которая войдет в дом в том месте, где вы поставите газовую плиту. Это можно сказать самое простое и дешевое событие, которое вас ожидает. Было бы прекрасно, если бы вы прислали фотографию дома со стороны. Хоть посмотрим, что перепроектируем. ВЫ в какой области необъятной России живете? И еще один вопрос — какой диаметр бревен, из которых сложен ваш сруб?
1
Я буду там в выходные. Пофотографирую комнаты и дом со стороны… Толщину сруба ещё не знаю, попробую узнать.
Живу в Беларуси.
Если с участком мне проще- легко даётся планирование, то с готовым домом много сложнее. С отделочными работами тоже мне проще.
Ещё раз огромное спасибо за внимание к вопросу. Мне это важно и нужно.
Живу в Беларуси.
Если с участком мне проще- легко даётся планирование, то с готовым домом много сложнее. С отделочными работами тоже мне проще.
Ещё раз огромное спасибо за внимание к вопросу. Мне это важно и нужно.
Добрый вечер, Наталья! Я внимательно изучаю планировку дома, и пока вижу, что такие маленькие комнаты, по 5 кв.м, есть смысл объединить.
Мне нужно подумать, как разумнее использовать пространство жилого дома. Буду работать, мне потребуется несколько дней на это.
Схема нашего уважаемого эксперта Олега Леонидовича, мне нравится, но поскольку Вы внесли уточнения, будем дальше искать планировочные варианты.
Мне нужно подумать, как разумнее использовать пространство жилого дома. Буду работать, мне потребуется несколько дней на это.
Схема нашего уважаемого эксперта Олега Леонидовича, мне нравится, но поскольку Вы внесли уточнения, будем дальше искать планировочные варианты.
1
Здравствуйте. У меня родился вариант. В субботу померяем на месте насколько он рабочий… тут примерно с мебелью, которую я хочу
![]()

Либо как-то так, если с мебелью.
Но проблема, что я фантазёр, а не архитектор, и я не знаю будут ли проблемы сместить дверные проёмы
![]()
Но проблема, что я фантазёр, а не архитектор, и я не знаю будут ли проблемы сместить дверные проёмы

Наталья, здравствуйте! Посмотрим, что получилось по моему эскизу. Из проходных комнат получился отдельный блок спальных помещений, с общим тамбуром и своим санузлом. Недостаток этого варианта — значительно сократилась площадь комнаты, превратившись в 9 кв. м. Но при этом все помещения стали изолированными. Читаю, про Ваше пожелание иметь ванну и душ, и поэтому можно в пристройке, где будет котельная (при современном оборудовании, как предлагает Олег Леонидович, не требуется большая площадь), разместить душевую. Все остальные помещения остались без изменений.
Что касается конструктивного решения, то данный вариант предлагает «пробить» одну дверь в несущей стене, речь идет о дальних комнатах. Все остальные изменения в перегородках, сложностей не представляют. Добавить дверной проем — дело несложное.
Наверное, что есть еще планировочные варианты. Надо подумать.
план дома
Что касается конструктивного решения, то данный вариант предлагает «пробить» одну дверь в несущей стене, речь идет о дальних комнатах. Все остальные изменения в перегородках, сложностей не представляют. Добавить дверной проем — дело несложное.
Наверное, что есть еще планировочные варианты. Надо подумать.
план дома
Спасибо!!!
Этот вариант мне тоже нравится.
Я завтра-послезавтра с ним тоже поиграю… распечатаю план и попробую порисовать-подумать…
Нас двое.
Дочка хорошо если прилетит раз в год. С ковидом мы ее уже вживую 2 года не видели… Вот, встретимся через неделю…
Поэтому по сути нам нужно 1 стационарная спальня, одна комната-трансформер, которую легко переоборудовать в спальню…
Мы минималисты. Мы любим пространство и свежий воздух.
Огромное спасибо за ваш вариант, я до него не додумалась бы.
Если вам придёт ещё идея какая-нибудь, я буду очень очень рада, если вы поделитесь.
Время у меня есть… документы буду делать в феврале-марте.
До этого досконально все пытаюсь предусмотреть…
Этот вариант мне тоже нравится.
Я завтра-послезавтра с ним тоже поиграю… распечатаю план и попробую порисовать-подумать…
Нас двое.
Дочка хорошо если прилетит раз в год. С ковидом мы ее уже вживую 2 года не видели… Вот, встретимся через неделю…
Поэтому по сути нам нужно 1 стационарная спальня, одна комната-трансформер, которую легко переоборудовать в спальню…
Мы минималисты. Мы любим пространство и свежий воздух.
Огромное спасибо за ваш вариант, я до него не додумалась бы.
Если вам придёт ещё идея какая-нибудь, я буду очень очень рада, если вы поделитесь.
Время у меня есть… документы буду делать в феврале-марте.
До этого досконально все пытаюсь предусмотреть…
Всем участникам обсуждения искренний привет!
Учитывая подписанный вчера руководителями наших стран совместные 28 программ совместного действия, то этот проект, будет 29-й программой. Действительно, у вас Наталья получается замкнутый цикл проекта — от карандашных набросков до будущего реального переустройства. Поэтому обращаюсь к вам с повторной просьбой все этапы переустройства фиксировать на фото и впоследствии выложить этот фотодневник именно на этом посте. Договорились?
Учитывая подписанный вчера руководителями наших стран совместные 28 программ совместного действия, то этот проект, будет 29-й программой. Действительно, у вас Наталья получается замкнутый цикл проекта — от карандашных набросков до будущего реального переустройства. Поэтому обращаюсь к вам с повторной просьбой все этапы переустройства фиксировать на фото и впоследствии выложить этот фотодневник именно на этом посте. Договорились?
Доброе утро)
Да, буду фотографировать.
Завтра сфоткаю комнаты «до»
Сейчас важно определиться, но я уже почти… весной взять разрешения, составить смету поэтапно и начинать…
Я хочу сделать это относительно быстро.
Есть ещё технические вопросы, но до весны я их не трогаю.
Пока я рисую максимум, который я хочу…
Параллельно делаю участок, там процентов на 60 -70 так я хочу, и 30-на вариации.
Да, буду фотографировать.
Завтра сфоткаю комнаты «до»
Сейчас важно определиться, но я уже почти… весной взять разрешения, составить смету поэтапно и начинать…
Я хочу сделать это относительно быстро.
Есть ещё технические вопросы, но до весны я их не трогаю.
Пока я рисую максимум, который я хочу…
Параллельно делаю участок, там процентов на 60 -70 так я хочу, и 30-на вариации.
Доброе утро.
Большое спасибо!
Я в выходные сделаю фотографии комнат. И дом снаружи со всех сторон.
Не знаю, возможно есть смысл убрать все перегородки, там, где комнаты по 5 метров и делать что-то типа студии? … тоже думаю…
Понимаете, там получается проблема окон, если делать 2 комнаты. Одна комната будет с 2-мя окнами и там будет темновато, а во второй на двух стенах будет пять окон утро-день сплошное солнце.
Но вариант этот пока тоже рассматриваю, хотя визуально не представляю еще.
Если оставить кухню там, где она есть, просто менять котёл и колонку на 2 контурный. Я переживаю, чтобы меня не заставили делать отдельно котельную, можно ли в случае чего вешать котёл в кладовую, не знаю, теоретически нельзя, должно быть 7,5 метров. Но сейчас то уже больше 50 лет все находится в кухне
Если можно оставить кухню как помещение для кухни и котла, то одно, а если скажут делать отдельно котельную-другое…
Документы будут делаться в феврале.
Там тоже сплошные окна двери- будет место для кухни с нижними шкафами и пара навесных, но это не проблема…
Как вариант -думали делать санузел в комнате, которая обозначена, как коридор. Вход из кухни.
Но мне жаль лишаться той входной двери( муж думает ее заложить и дверь в среднюю комнату тоже заложить)
Пока в раздумьях.
Там нет отопления, его будем делать.
Как третий вариант, уже голову сломала и думала даже ничего не трогать.
Делать нам спальню в помещении А, из 5 метровых комнат делать кабинеты-с компьютером, со швейной машинкой и нашими коллекциями.
Но там непонятно куда поставить кровать…
Дочка бы спала в спальне помещения Б…
если муж заложит 2 двери в коридоре, то придётся расширять входную дверь из кухни, там несущая стена и брать разрешение на это тоже?
Я страдаю сейчас, потому что к весне мне надо ехать со списком «хотелок» и одним махом хотелось бы сделать все разрешения на все основные переделки, дальше уже будем окончательную смету составлять…
По участку есть еще вопросы, но там все проще. Я уже распланировала -огород, сад-газон. Беседку…
Но там есть 50 кустов роз, часть из них высажены несколько хаотично, часть как картошка, грядками.
И вроде мне столько не нужно, оно некрасиво так, как они растут сейчас…
Летом, будут цвести, помечу те, которые хочу оставить…
Но вроде как это память о предках и тд, рука не поднимается их убрать, кусты старые, пересадить какие-то можно попробовать, но приживутся ли, хочу попробовать черенковать в следующем году…
Но про это потом буду думать, там попроще, чем с домом…
Ещё раз большое спасибо.
Большое спасибо!
Я в выходные сделаю фотографии комнат. И дом снаружи со всех сторон.
Не знаю, возможно есть смысл убрать все перегородки, там, где комнаты по 5 метров и делать что-то типа студии? … тоже думаю…
Понимаете, там получается проблема окон, если делать 2 комнаты. Одна комната будет с 2-мя окнами и там будет темновато, а во второй на двух стенах будет пять окон утро-день сплошное солнце.
Но вариант этот пока тоже рассматриваю, хотя визуально не представляю еще.
Если оставить кухню там, где она есть, просто менять котёл и колонку на 2 контурный. Я переживаю, чтобы меня не заставили делать отдельно котельную, можно ли в случае чего вешать котёл в кладовую, не знаю, теоретически нельзя, должно быть 7,5 метров. Но сейчас то уже больше 50 лет все находится в кухне
Если можно оставить кухню как помещение для кухни и котла, то одно, а если скажут делать отдельно котельную-другое…
Документы будут делаться в феврале.
Там тоже сплошные окна двери- будет место для кухни с нижними шкафами и пара навесных, но это не проблема…
Как вариант -думали делать санузел в комнате, которая обозначена, как коридор. Вход из кухни.
Но мне жаль лишаться той входной двери( муж думает ее заложить и дверь в среднюю комнату тоже заложить)
Пока в раздумьях.
Там нет отопления, его будем делать.
Как третий вариант, уже голову сломала и думала даже ничего не трогать.
Делать нам спальню в помещении А, из 5 метровых комнат делать кабинеты-с компьютером, со швейной машинкой и нашими коллекциями.
Но там непонятно куда поставить кровать…
Дочка бы спала в спальне помещения Б…
если муж заложит 2 двери в коридоре, то придётся расширять входную дверь из кухни, там несущая стена и брать разрешение на это тоже?
Я страдаю сейчас, потому что к весне мне надо ехать со списком «хотелок» и одним махом хотелось бы сделать все разрешения на все основные переделки, дальше уже будем окончательную смету составлять…
По участку есть еще вопросы, но там все проще. Я уже распланировала -огород, сад-газон. Беседку…
Но там есть 50 кустов роз, часть из них высажены несколько хаотично, часть как картошка, грядками.
И вроде мне столько не нужно, оно некрасиво так, как они растут сейчас…
Летом, будут цвести, помечу те, которые хочу оставить…
Но вроде как это память о предках и тд, рука не поднимается их убрать, кусты старые, пересадить какие-то можно попробовать, но приживутся ли, хочу попробовать черенковать в следующем году…
Но про это потом буду думать, там попроще, чем с домом…
Ещё раз большое спасибо.
0
Спасибо, что написали про Белоруссию. У меня была оказия более внимательно посмотреть белорусские бревенчатые дома в поселке Гонолес на берегу Минского моря. Именно там у меня появился «белорусский» вопрос о диаметре бревен.
Облицовка сайдингом бревенчатого сруба
![Облицовка сайдингом бревенчатого сруба]()
Облицовка сайдингом бревенчатого сруба

Спасибо Наталия за фотографии. Скажите, а не прохладно ли в доме, сооруженном из бревен? Или под облицовкой имеется дополнительное утепление?
0
Летом в нем не очень жарко. В доме прохладно, если на улице плюс 10 и не включать отопление. Если котёл на минимум поставить, в доме тепло. Из пола местами мне дует, такие ощущения. Но если включено отопление, то я не чувствую. Мы пока не знаем есть ли что-то между брёвнами и деревянной доской, изнутри на брёвнах дранка, глина или штукатурка какая-то и обои. Подоконники дубовые. Полы непонятно какие, есть перепады, но они не скрипят. Явно плохой пол на кухне и веранде( коридор), там картонная плита лежит, я забыла как называется. Но там я хочу плиточный пол, его все равно придётся удалять-менять Что делать с полами в комнатах пока тоже не понятно. Нам даже строители на консультации сказали-вроде бы пол норм. Хоть и кривоват. ( по моему детству он всегда таким был) Понятно, что всё дорого. Поэтому пытаюсь понять что нужно было бы все же напрячься и для себя сделать хорошо. И потом считать уже тянем ли мы это или нет. Пока по максимуму смотрим.
Внимательно изучила схему.
В помещении А( там где большая и 2 маленькие комнаты) толщина сруба 0,24м
В остальных 0,22, есть 0,26… но это неточно, потому что я не очень уверена, что эти цифры толщина стены…
В помещении А( там где большая и 2 маленькие комнаты) толщина сруба 0,24м
В остальных 0,22, есть 0,26… но это неточно, потому что я не очень уверена, что эти цифры толщина стены…
Наталья, не торопитесь сносить стены. Небольшие помещения очень пригодятся как кладовки, дополнительные санузлы, мини-кабинеты или комнаты для хобби…
Попробуйте представить себе, как проходит день в доме в разное время года, чем вы занимаетесь, как вы перемещаетесь из дома на участок и обратно, как приезжает кто-нибудь в гости. Чтобы составить проект, нужно время и спокойствие))
Попробуйте представить себе, как проходит день в доме в разное время года, чем вы занимаетесь, как вы перемещаетесь из дома на участок и обратно, как приезжает кто-нибудь в гости. Чтобы составить проект, нужно время и спокойствие))
1
Я про все это думаю и зависаю местами.
Я бы оставила комнаты по 5 метров под мини кабинеты а из смежной комнаты сделала бы спальню, но пока вопрос как это обустроить, куда станет кровать и тд,
Маленькую комнату в среднем помещении можно оформить под спальню дочки, когда она раз в год приезжает … и хочу сделать возможность при необходимости разместить человека в большой проходной средней комнате или столовой.
Хочу убирать советские «стенки», покупать со временем частично другую мебель, частично пользоваться этой.
Самая большая проблема -ванна туалет, это надо делать обязательно и менять котёл …
Короче, как лучше я не знаю пока.
Спасибо большое за ответ, мне сейчас всё очень важно!
Я бы оставила комнаты по 5 метров под мини кабинеты а из смежной комнаты сделала бы спальню, но пока вопрос как это обустроить, куда станет кровать и тд,
Маленькую комнату в среднем помещении можно оформить под спальню дочки, когда она раз в год приезжает … и хочу сделать возможность при необходимости разместить человека в большой проходной средней комнате или столовой.
Хочу убирать советские «стенки», покупать со временем частично другую мебель, частично пользоваться этой.
Самая большая проблема -ванна туалет, это надо делать обязательно и менять котёл …
Короче, как лучше я не знаю пока.
Спасибо большое за ответ, мне сейчас всё очень важно!
Добрый вечер Наталья! В последнем вашем суждении я нахожу 100 процентно правильный подход. НАдо разобраться с САН.ТЕХНИЧЕСКОЙ комнатой.
Шаг номер один — определиться с выбором теплоагрегата., в вашей семье, рискну предположить, что имеет смысл делать совмещенный узел
Шаг номер четыре — утвердить место расположения туалета.
Шаг номер пять — на оставшейся территории, разместить умывальную раковину и ванну ИЛИ душевую кабину.
После утверждения плана расстановки сантехприборов, переходите уже в жилую часть.
Хотя на моей схеме я изобразил туалетную комнату с двумя дверьми, хочу отметить, что санитарная комнатас ДВУМЯ дверьми — не самое лучшее решение с этической точки зрения. Я регулярно бываю в загородном доме в туалете с двумя дверьми и доложу Вам, Наталья, это рождает некоторые этические проблемы.
И напоследок ГЛАВНОЕ.
У Вас должен появиться ПРОЕКТ РЕКОНСТРУКЦИИ ВАШЕГО ДОМА. В этом документе должны быть собраны все ваши проблемы (левая часть страницы) и пути их решения (правая сторона страницы).
Я абсолютно уверен, что Виктор Григорьевич подготовит для Вас оптимальное решение, возможное в рамках вашего дома.
Обвязка котла. Красным окрашены красным цветом, синим — холодные трубы
![Обвязка котла. Красным окрашены красным цветом, синим - холодные трубы]()
Шаг номер один — определиться с выбором теплоагрегата., в вашей семье, рискну предположить, что имеет смысл делать совмещенный узел
Шаг номер четыре — утвердить место расположения туалета.
Шаг номер пять — на оставшейся территории, разместить умывальную раковину и ванну ИЛИ душевую кабину.
После утверждения плана расстановки сантехприборов, переходите уже в жилую часть.
Хотя на моей схеме я изобразил туалетную комнату с двумя дверьми, хочу отметить, что санитарная комнатас ДВУМЯ дверьми — не самое лучшее решение с этической точки зрения. Я регулярно бываю в загородном доме в туалете с двумя дверьми и доложу Вам, Наталья, это рождает некоторые этические проблемы.
И напоследок ГЛАВНОЕ.
У Вас должен появиться ПРОЕКТ РЕКОНСТРУКЦИИ ВАШЕГО ДОМА. В этом документе должны быть собраны все ваши проблемы (левая часть страницы) и пути их решения (правая сторона страницы).
Я абсолютно уверен, что Виктор Григорьевич подготовит для Вас оптимальное решение, возможное в рамках вашего дома.
Обвязка котла. Красным окрашены красным цветом, синим — холодные трубы

2
Доброе утро.
Кстати, почему ИЛИ ванну ИЛИ душевую?
Муж хочет ванну, я хочу стационарно душ.
Я думала и то и то пусть будет.
Кстати, почему ИЛИ ванну ИЛИ душевую?
Муж хочет ванну, я хочу стационарно душ.
Я думала и то и то пусть будет.
0
Поверьте, Наталья, я не собираюсь ограничивать вашу фантазию. Давайте и ванную, и душевую кабину, есть еще несколько замечательных сантехнических приборов, делающих жизнь комфортнее.
Теперь главное — сосредоточиться на П Р О Е К Т Е переустройства. Это может быть и тетрадочка в клеточку, и ватманский лист. Главное собрать все свои «хотелки» и скомпоновать их после длительных творческих мук и бессонных ночей в оптимальный вариант.
ИТАК — ВАМ НУЖЕН ПРОЕКТ!!!
Теперь главное — сосредоточиться на П Р О Е К Т Е переустройства. Это может быть и тетрадочка в клеточку, и ватманский лист. Главное собрать все свои «хотелки» и скомпоновать их после длительных творческих мук и бессонных ночей в оптимальный вариант.
ИТАК — ВАМ НУЖЕН ПРОЕКТ!!!
2



После двухкратного прочтения вашего письма остаются вопросы, которые следует прояснить
1- какой стеновой материал использован в вашем доме — древесина, кирпич, блоки и пр.
2 -какой у вас котел, почему вы его хотите менять?
3 — как где выполнен дымоход?
4 — хватает ли воздуха при закрытых окнах, есть ли вентиляция
5 — является ли часть дома, где кухня и комната площадью 17.2 кваратных метров последующей пристройкой?