Как распланировать прямоугольный участок 11 соток (38 м по фасаду на 28 м)?

Поделиться ссылкой
Копировать ссылку
Kryjovnikova Kryjovnikova
Всем доброго времени суток! Буду очень благодарна, если поможете советом по планировке участка. Уже активно осваиваемся на участке. Место под дом уже выбрано, траншея под фундамент вырыта 🙈 Участок расположен в Курской области, размер: 38 х 28 м, дом будет 10х14. От дороги снизу и от соседа справа по 8 м отступили. Септик тоже уже поставили напротив санузлов в доме. Где лучше установить скважину? Где разместить баню? Можно ли нарушить противопожарные нормы и построить баню ближе чем 8 м от дома (в том месте, где уличный туалет стоит, в правом верхнем углу). Или баню ставить в левый угол? Очень хочется, чтобы всё вписалось органично и было радостно на душе, созерцая через годы плоды труда. Где что посадить, тоже ещё гадаю. Хочется, чтобы росла голубика, смородина, малина, клубника (дети любят ягодки). Яблони, груши, слива, черешня. И был небольшой огород для зелени, редиски, моркови, гороха. Но по-моему, всё это не поместится на нашем участке 😁 Помогите, пожалуйста, советом, где и как всё это разместить правильно. Рациональным ли было решение строить гараж справа от дома? Очень долго сомневались...

Схематичный план
Схематичный план

Визуализация примерная (только здесь был отступ от дороги 5 м и от соседа справа 7м, ещё не переделала)
Визуализация примерная (только здесь был отступ от дороги 5 м и от соседа справа 7 м, ещё не переделала)

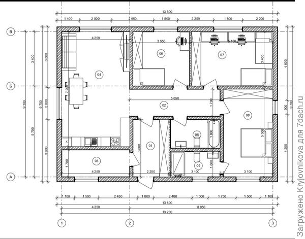
Планировка дома, выход на террасу слева из кухни-гостиной
Планировка дома, выход на террасу слева из кухни-гостиной
У вас есть свой дачный вопрос? Задайте его нашим экспертам и опытным дачникам.
Задать вопрос

Вопрос размещен в разделах: вопросы,
2 комментария   спасибо за вопрос   в избранное 1667 просмотров
Поделиться ссылкой
Копировать ссылку
Автор вопроса:
Все ответы и комментарии (2)
Здравствуйте! На схеме, предложенной Вами, на первый взгляд, все логично расположено. Важно заложить пешеходные связи, предусмотреть направления для комфортного передвижения и создать интересные видовые точки.
Поработаем над этим.
Спасибо, Виктор Григорьевич. Буду ждать сколько потребуется! Пока вяжем потихоньку арматуру для фундамента дома 😀 У Вас очень грамотное видение пространства! Восхищена Вашими проектами 👏👏👏

Пожалуйста, оставьте комментарий

Внимание! Если у вас есть свой вопрос, задайте его отдельно, в специальной форме
Или через: