Как расположить дом, чтобы не быть близко к соседям и не потерять вид? - ответы экспертов 7dach.ru
Наш сайт использует файлы cookies, чтобы улучшить работу и повысить эффективность сайта.
Продолжая использование сайта, вы соглашаетесь с Политикой конфиденциальностиок
Как расположить дом, чтобы не быть близко к соседям и не потерять вид?
Поделиться ссылкой
Копировать ссылку
Здравствуйте, у нас участок 22 на 80 метров, узкой частью идёт с севера на юг, север выходит на дорогу, по бокам соседи. Терраса получается на северной стороне, так как с нее открывается красивый вид. Хотим поставить на этом участке дом 9,5 на 14,6, а также парковку, зону отдыха с барбекю, плодовый сад, клумбы. Есть небольшой уклон с востока на запад. Подскажите, пожалуйста, как лучше расположить дом, чтобы не быть близко к соседям и не потерять вид?
А что за дорога? Какой на ней трафик?
В нашем СНТ, у участков, которые граничат с центральной дорогой садоводства, у всех глухие заборы. Отгородились от шума проезжающих машин и любопытных глаз.
Ваша терраса будет иметь вид на дорогу, а все проезжающие и проходящие будут иметь вид на вашу террасу.
3
Дорога деревенская, не трасса, у нас есть возможность сдвинуть дом от въезда вглубь участка, вопрос в том, есть ли смысл дом ставить посередине, получается тогда по 8 метров с каждой стороны и непонятно, что тогда разместить по бокам, а если двигать дом в одну или другую сторону до расстояния 3 метра от забора, будет слишком близко к соседям.
А от дороги планируем метров 15 отступить. Дом будет одноэтажный.
Мы в свое время тоже хотели террасу сделать на фасадной части дома. Хотя забор у нас глухой, от этой идеи мы в конечном итоге отказались. И Вам правильно сказала Юлия Николаевна — если участок не огорожен или огорожен низким забором, то все проходящие и проезжающие будут однозначно на вашу террасу смотреть. Это происходит непроизвольно. Сами также разглядываем😀 У нас терраса вдоль дома и мы очень довольны. Если будет интересно, посмотрите в моем профиле фото. Вдруг наша идея Вам понравится. Единственное, у нас участок широкий и вид с террасы получился неплохой. В вашем случае этот момент надо продумывать мне кажется.
Тогда спальни получатся на северной стороне, наверное это тоже не очень хорошо, а так гостиная и терраса. Даже незнаю, как быть.
Мы со спальнями так не заморачивались. У нас вторая спальня окном в сторону забора с соседями выходит. Мы рассуждаем по принципу -спальня чтобы спать. А вот вид из гостиной и достаточное количество света в ней оказались в приоритете.
Здравствуйте, Witallina! Совсем закрыться от соседей не получится, 20 метров этот немного. Но попробовать можно. Рядом построены дома соседей? Я понимаю, что проект дома выбран, а если нет, то посмотреть другие варианты, где спальные и гостиные помещения будут ориентированы юг/север, а на запад/восток будут обращены помещения технического характера, или помещения предназначенные не для длительного пребывания. В общем, надо смотреть проект дома.
Можно сдвинуть дом в глубину участка, таким образом, отдалиться от дороги.
Вариантов много и их важно проанализировать.
1
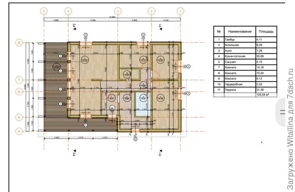
Здравствуйте Виктор Григорьевич, спальни по проекту как раз выходят на юг, а гостиная с террасой на север, меня беспокоит, на каком расстоянии расположить дом от соседских заборов, три метра, мне кажется, это очень близко, может вообще дом поставить в середине, тогда с каждой стороны останется по 8 метров. Проект дома прилагаю. Здесь слева направо направление север-юг
Мы продолжаем разбирать пути решения для случаев, когда загородный участок имеет нестандартные исходные данные. В предыдущей статье (Участок на склоне: как укротить сад со сложным рельефом) мы уже рассмотрели несколько удачных проектных решений. В...
Здравствуйте, уважаемые дачники!
Мне необходима помощь специалиста в вопросе планировки участка. Виктор Григорьевич, очень надеюсь на Вашу помощь, уж очень нравятся Ваши работы.
Имеется участок, узкий, почти прямоугольный (фото и схема...
Добрый день.
Весной этого года переехали в деревню. Территориально Поволжье. Дом новый, на пустом (расчищенном) участке, только забор в лицевой части участка с калиткой и воротами был. Над планировкой участка думала все лето, когда время было...
Доброго времени суток. Имеем участок 10 соток неправильной формы. Участок находится в низине, высокий уровень пролегания грунтовых вод.
Постройки: Дом 15х8, гараж, баня. Предварительно распределили место под огород и теплицу. Забор: вдоль...
Доброе утро, уважаемые семидачники! Очень нужна ваша помощь в планировании дачного участка 12 соток. Участок ровной формы, 40х30 м, угловой. Фасадная часть (40 м) на юге. Слева (на западе) и сверху (на севере) граничит с соседскими участками, на...
Здравствуйте! У нас есть участок 7,22 сотки, не совсем правильный прямоугольник. Предстоит строительство дома. Очень нужна грамотная помощь в правильном распределении объектов недвижимости на нем. Сейчас там еще стоит старый дом, но он будет...
Смотрите все материалы про планирование участка и сада:
Смотреть все
В нашем СНТ, у участков, которые граничат с центральной дорогой садоводства, у всех глухие заборы. Отгородились от шума проезжающих машин и любопытных глаз.
Ваша терраса будет иметь вид на дорогу, а все проезжающие и проходящие будут иметь вид на вашу террасу.
Можно сдвинуть дом в глубину участка, таким образом, отдалиться от дороги.
Вариантов много и их важно проанализировать.
Здесь слева направо направление север-юг