Как грамотно распланировать участок ~50 соток на 2 семьи?
Помогите, пожалуйста, с планировкой участка 50 соток. Приобрел для себя и своей семьи. Это мое первое строительство и планировка участка, всю жизнь жил в квартирах, но устал от давящих стен и плохого качества воздуха. Всю голову сломал, как разместить, учитывая все правила (необходимое количество метров от септика до скважины и т.п.). Опыта нет совсем.
Участок немного неправильной формы, выровненный, размеры постарался передать на картинке.
Хотелось бы разместить:
1. Родительский одноэтажный дом-баня площадью 157 кв.м.
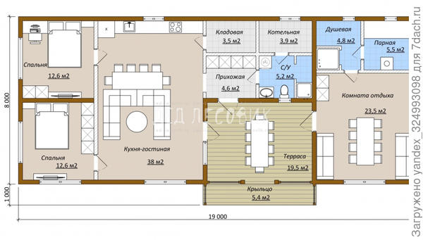
2. Основной одноэтажный дом площадью примерно 200 кв.м.
3. Пару теплиц с небольшой огородной зоной.
4. Беседку с мангальной зоной (зоной барбекю).
5. Площадку + гараж на 4 транспортных средства (с навесом) и небольшой мастерской.
6. Зону отдыха (газон, возможно плодовые деревья), совмещенную с детской зоной (песочница, качели, брусья и т.п.).
7. Хозблок с душем и туалетом + хранение техники (газонокосилка, культиватор и т.п.).
8. Скважину, септик.
Сейчас на участке пусто, есть небольшого размера пруд глубиной 2-3 метра, точных размеров длины и ширины не могу сказать. Строительство начнется с родительского дома, его планировал разместить ближе к правой стороне участка (Недалеко от заезд 1), основной дом планировался с ближе к середине или к левой стороне участка. Выбор въезда не окончательный, готов выслушать предложения.
Из коммуникаций:
1. Электричество и газ в нескольких метрах от заезда 1.
2. Планирую бурить скважину, только нет примерного понятия по её размещению.
3. Септик также планируется, но где и как, нет примерного понятия по её размещению.
Планирую начать стройку в мае.
Заранее сердечно благодарю!
С Уважением,
Павел
Прикладываю проекты домов, гаража, хозблока, которые собираюсь реализовать на участке.

План участка

Родительский дом-баня

Основной дом

Хозблок

Примерные размеры гаража
Это может быть полезным:
У вас есть свой дачный вопрос? Задайте его нашим экспертам и опытным дачникам.
Задать вопрос
Задать вопрос
Все ответы и комментарии (7)
Всех горячо приветствую! Ездил на участок, сделал пару фотографий, на них скорее ничего не видно, постараюсь на днях найти летние и осенние фотографии.
В данный момент договорился по подключению к электричеству.
![]()
![]()
![]()
В данный момент договорился по подключению к электричеству.



0
Большой участок, по 25 соток на каждую семью — за глаза. Забор между двумя семьями не планируете? Огород, зона отдыха общие будут?
0
Снова всех приветствую! Приходится вносить некоторые изменения в план местности, план который я делал выше несколько опережал события, не удалось приобрести в собственность последний участок.
Прикладываю обновленный план.
Снова прошу совета
P.s Не нашел возможности поменять название темы и картинку плана в стартовом своей сообщении
Обновленный план участка
![Обновленный план участка]()
Прикладываю обновленный план.
Снова прошу совета
P.s Не нашел возможности поменять название темы и картинку плана в стартовом своей сообщении
Обновленный план участка

0
Время есть