Как распланировать участок с постройками?

Поделиться ссылкой
Копировать ссылку
Topuchi Topuchi
Помогите, пожалуйста, распланировать участок в ближнем Подмосковье. Сейчас построек на участке нет, коммуникации тоже не заведены. Планируется двухэтажный дом размером 7х16 + веранда (у дома с одной стороны почти нет окон, поэтому можно приблизить его к забору), большой гараж (на 3 машины), въезд сейчас, как на плане, но при желании можно переместить в противоположный угол со стороны улицы. Хотелось бы еще огородик, курятник, зону отдыха (мангал, барбекю). Буду рада советам.

план участка
План участка

план дома 1 этаж
План дома, 1 этаж

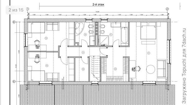
план дома 2 этаж
План дома, 2 этаж
У вас есть свой дачный вопрос? Задайте его нашим экспертам и опытным дачникам.
Задать вопрос

Вопрос размещен в разделах: вопросы,
9 комментариев   спасибо за вопрос 1 в избранном 1740 просмотров
Поделиться ссылкой
Копировать ссылку
Автор вопроса:
Добавили вопрос в избранное
Strashnov Виктор Григорьевич
Все ответы и комментарии (9)
Здравствуйте, наша читательница. Подготовлю для Вас эскизное предложение, на работу потребуется несколько дней. С уважением Виктор Григорьевич
Спасибо большое
Добрый день, Topuchi! Мне представилась возможность поработать над планировкой Вашего участка, сложного по форме, и попробовать создать в графическом виде удобную среду для отдыха и работы в саду. Участок по проекту разделен на несколько зон, причем зонирование получилось достаточно четкое. Первая зона — 2х этажный жилой дом с верандой, ориентированной на юго-восток. Замечу, что при такой конфигурации участка, для дома, как правило, выбирается самое широкое место, что позволит задействовать фасады здания с разных точек участка, что и представлено на эскизе. Перед домом формируется парадная часть, идущая от входа на участок, к этой зоне можно отнести большую круглую акцентную клумбу, завершает ансамбль декоративная система вечерней подсветки. Гараж отнесен в сторону от дома, и не закрывает обзор главного фасада. Я считаю этот момент важным, поскольку техническое сооружение, хоть и решенное в едином стиле со зданием, всегда вступает с ним в архитектурный диссонанс. Большая площадь участка отведена под зону отдыха, в которой собраны все атрибуты для комфортного времяпровождения. Здесь есть мангальная зона, предусмотрена площадка для трапезы на свежем воздухе, а также навес, который закроет от солнца и от дождя в непогоду и не помешает отдыху. Третья зона предназначена для хозяйственной деятельности, расположена в периферийной части участка, но из недостатков можно назвать вид с веранды на огород, но инсоляция не позволит пойти по другому пути. Поэтому важно продумать огородную часть и вписать ее в общий ландшафт участка. Это совет на всякий случай, чтобы потом не пришлось прибегать к искусственным ограждениям этой части. При таком планировочном решении создается единое пространство участка, а помогают в этом пешеходные оси. На данном этапе, они показаны как направления и, безусловно, могут поменяться в процессе благоустройства. Рад был принять участие в работе. Удачи!
эскиз планировки
эскиз планировки
Здравствуйте, Виктор Григорьевич! Прекрасный эскиз. Спасибо за проделанную работу. На месте где Вы расположили дом, до этого стоял дом предыдущих хозяев, который пришлось снести, ввиду его ветхости. И под снесенным мы обнаружили ещё один фундамент от сгоревшего дома. Этот факт нас остановил строиться на этом же месте, а ещё высоченные сосны справа, которые дают тень. Может суеверно, но говорят на пепелище не строят. Как Вы думаете, если расположить дом на месте зоны отдыха длинной стороной вдоль забора? Насколько рационально будет это планировочное решение?
Уважаемая Topuchi, очень хотелось бы знать ваше имя, чтобы было удобнее обращаться к вам. На плане Виктора Григорьевича дом задвинут в глубину участка почти на 30м! Да и при переносе его к другому забору расстояние до входа будет такое же. Даже больше, т.к. вход от дома будет по диагонали, а диагональ всегда длиннее катета Вы представляете себе, сколько км за день вы будете пробегать до него от ворот и чистить зимой подходы к нему? Я уже не раз писала вот к таким постам и планам: разложите на участке, пока он у вас пустой, макеты ваших строений и попробуйте походить с месячишко. Потом поймете, что и где лучше строить. Ну и с точки зрения пожарной безопасности жилые дома и бани лучше располагать ближе к дороге, а не в глубине участка. Я вот не понимаю, почему сейчас разрешают строить, кому как на душу упадет? Раньше такого не было. Все дома строились у входа на участок, чтобы если что, не дай Бог, случится, пожарная машина могла подъехать, а не тянуть шланги на стописят метров!
Здравствуйте, Людмила. Меня Зовут Юля. Приятно познакомиться На 30 м вряд ли дом утоплен, там всего 31 метр. Конечно хочется учесть все: и стороны света, и удобство подъездов и подходов, поэтому и обратилась за советом. Маленький участок-плохо, большой — тоже плохо. Голова кругом
Очень приятно!
Юля, у меня участок 6 соток, так сказать — золотое сечение 20*30 м. От дома до огородика тоже всего каких-то 20 м. Но за день так набегаешься, что к вечеру ноги гудят. Да еще и по моим ступенькам
Поэтому, поверьте нА-слово тем, кто это уже все на своих ногах вынес.
Я бы дом поставила правее гаража, где у ВГ цветочная клумба. Я лично не вижу в ней смысла в этом месте. Да и солнце этой клумбе дом будет загораживать.
А вот, если баню хотите строить, то ее как раз, можно будет расположить на том месте, где на плане дом. Только сместить чуток ближе к забору вниз.
Добрый вечер! Жаль, что Вы не дали столь важную информацию, перед началом работы.
Но думаю, что дом вполне может переехать на левую сторону участка, инсоляция позволяет это.
Но сосны возле дома, мне больше по душе.
Сама только узнала во время сноса(((( Приходится менять планы на ходу.

Пожалуйста, оставьте комментарий

Внимание! Если у вас есть свой вопрос, задайте его отдельно, в специальной форме
Или через: