Как правильно утеплить мансардный этаж?

Поделиться ссылкой
Копировать ссылку
Добрый день! Подскажите, пожалуйста, как правильно утеплить мансардный этаж? Дело в том, что когда мы сняли старый утеплитель, то увидели, что крыша утеплена не совсем правильно, то есть нет того пирога, какой должен быть. Нет продухов. На лагах просто лежит какой-то чёрный плотный материал и сразу положена металлочерепица. Крышу переделывать нет средств. Так как же с минимальными затратами утеплить мансардный этаж? Кровля скатная. Заранее благодарю за совет.
У вас есть свой дачный вопрос? Задайте его нашим экспертам и опытным дачникам.
Задать вопрос

Вопрос размещен в разделах: вопросы, , , ,
39 комментариев 2 спасибо за вопрос 3 в избранном 7770 просмотров
Поделиться ссылкой
Копировать ссылку
Автор вопроса:
Добавили вопрос в избранное
svetvac Светлана и еще 2 человека
Все ответы и комментарии (39)
Один тонкий момент Павел! Если все помещение укутать в пароизоляционную пленку, то через полчаса возникнет вопрос — а чем там (на верхотуре) дышать? Поэтому стоит подумать об организации самой простенькой вентиляционной системы, состоящей из одно вытяжного вентилятора (на одной торцевой стене) и «какой-нибудь» щелки на противоположной стене. Я об этом писал выше в этом же посте. Стоимость такого аппарата не более полутора тысячи рублей. Его мощность, — 30 Ватт. То есть, если его использовать аж 10 часов, то он «наест» 300 ватт, то есть где-то около 2 рублей.
Нет. Пожалуй, я тогда лучше воздержусь от применения пароизоляционной плёнки. Действительно, теплица какая-то получится. Хм. Не подумал.
У нас насчет вентиляции проще — есть окна, есть у них «режим проветривания» (не настежь, я эдакая… эээ… форточка). Вентиляторы городить — не, точно не буду.
Избегаю применять лишнюю электропроводку там, где она ни к чему. В этой комнате будет от силы одна сдвоенная розетка и торшер на полу (второе гнездо розетки так, про запас, мало ли, может мобильник зарядить). Обычная запасная спальня, ничего лишнего.
Добрый день! Можно ли попросить показать фотографию дома снаружи. Интересно, как там смотрятся весьма узкие объемы той мансарды, фотографии которой размещены как-раз над этим текстом? используется ли РЕАЛЬНО для жизни этот весьма узкий объем?
Добрый вечер, Олег! Постараюсь нарисовать схему побыстрее. Кое какие размеры у меня есть и сейчас. Спасибо.
Действительно, Елена, давайте вместе подсчитаем, и к праздникам вы уже сможете спокойненько выбирать себе осознанно качественные материалы для грамотного утепления мансарды.

Я думаю, что одного рейса бортового грузовика будет достаточно, чтобы отвезти и теплоизоляцию, и пароизоляцию, и ветроизоляцию.

Наверное еще в Интернете можно посмотреть, что у вас есть в продаже на стройрынке в столь интеллектуально продвинутом городе, как Озерск. Целенаправлено следует думать о КОМПЛЕКТНОЙ поставке. Счастливо.

Так нельзя хранить теплоизоляцию

Так нельзя хранить теплоизоляцию

Укладка пароизоляции под отрицательным углом

Укладка пароизоляции под отрицательным углом
Добрый вечер, Елена! Не утерпел и попробовал пройтись по вашим строительным магазинам. Я их насчитал восемнадцать. Наверное, на 80000 жителей этого достаточно? Или надо ехать в областной центр? Жалко, но номенклатура товара еще незначительно отражена на сайтах. Ок, ждем вашего похода за размерами
Удивилась. У нас 18 магазинов??? Знаю 2 и остальные — строительные «лавки», которые под заказ везут со строительных рынков Че и Ебурга. Дешевле самостоятельно съездить. Такова наша селяви, Олег.
Добрый вечер, Олег! Строительных магазинов много, но толку от них мало. Мы закрытый город и цены у нас запредельные. Самый лучший способ, это посетить Челябинск или Екатеринбург. Что я и сделаю, после замеров. И надо определиться с производителем.
Доброе утро, Елена! Осторожно предположу, что надо ориентироваться на комплектное приобретение материалов компании Роквул. Ближайшая точка производства этого материала — на территории Республики Татария есть специальная экономическая зона — Алабуга. Именно там находится ближайший до Вас завод этой компании, кстати, самый большой в мире этой компании.
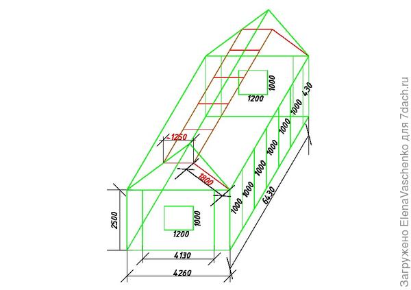
Добрый вечер, Олег! Начертила, по размерам которые у меня были. Но кое-что надо уточнить. Да и по-моему, чертёж не особо получился. Если плохо видно, то красным по диагонали 1800 м по прямой 1200 м (рис.2). Стропилы у меня всего 140 мм. Наверно надо нарастить. Итак, мне надо продумать кол-во следующих материалов: гидроизоляция, утеплитель, пароизоляция, ОСБ плита для отделки, доска, скотч для проклейки, гвозди, саморезы. Что-то ещё?

Мансардный этаж Рис.1
Мансардный этаж Рис.1

Мансардный этаж. Рис 2
Мансардный этаж. Рис 2
Добрый день, нет уже вечер Елена!
Я выполню свое обещание и подсчитаю «в прямом эфире» потребности вашей будущей мансарды. В апреле будет 2 выходных дня, и я как-раз займусь этим на отдыхе. Так что соотнесемся с вами примерно 29-30 апреля.
Спасибо!
Добрый предпраздничный вечер, Елена! Гости разошлось и можно спокойненько заняться строительными расчетами. Хотя это громко сказано – РАСЧЕТЫ. Просто подсчитаем сколько же вам требуется изоляции для комфортного зимовья в условиях хоть и южного, но Урала. Сказать просто конечную цифру это не интересно. То есть никто из наших читателей не подхватит из нашего с вами, Елена, обсуждения полезной информации. Разумеется, я делаю этот расчет совсем прозрачным, чтобы и вы могли проследить за мной и выявить какие-то недочеты, или даже ошибки. Никто от них не застрахован. Приведу пример, весьма забавный, из своей практики. Как-то наша небольшая строительная компания выполняла один объект, где обременением было сооружение детско-спортивной площадки с хоккейной коробкой. До этого на пятне застройки мы снесли отжившую свое «хрущобу». Я полностью доверил сооружение бригадиру, вручив ему все бразды правления. При заливке бетонной плиты под хоккейную коробку вдруг оказалось, что у нас лишних несколько кубов бетонной смеси. Куда ее девать в центре города? Кстати, это был самый простой вопрос. А посложнее – откуда такой НЕДОРАСХОД бетона. Обычно ведь бетона не хватает, а тут излишек в несколько кубов.
Начали выяснять, в чем дело. Вы видали хоккейную коробку и помните, что там нет острых углов в во всех сочленениях сторон эти углы выполнены как часть окружности. Так вот, наш славный бригадир (выпускник техникума) использовал для расчета площади круга πR² формулу для расчета площади круга 2 πR. Кто бы мог подумать такой оборот? Грамотность чрезмерная подвела.
Поэтому я выношу на обозрения все детали расчета, чтобы вы могли самостоятельно меня проверить и с твердой уверенностью закупать недешевый теплоизоляционный материал, а к нему еще и пароизоляцию, и гидро-ветроизоляцию.
Первое замечание – мне кажется, что на рисунке два коричневая наклонная линия над цифрой 1800 своим нижним концом упирается не туда, куда надо. Предполагаю, что она должна быть ограничена лимитом в 4130 мм. Прошу меня подправить, если я ошибаюсь.
Начинаем с выяснения периметра мансарды в поперечном сечении, за исключением размера пола.
2 вертикальных стены по 2500 мм = 5 метров.
2 наклонных участка по 1800 мм – 3600 мм
И один горизонтальный участок размером 1250 мм.
Немного округляя получаем, что размер периметра поперечного сечения составляет 10 (десять) метров.
Длина мансарды составляет 6,5 метров.
Таким образом, чтобы укутать вашу мансарду сверху и с боков требуется 10 метров умножаем на 6, 5 метров получаем 65 квадратных метров.
Теперь займемся торцевыми стенками. Для расчета их площади придется разделить имеющуюся замысловатую геометрическую фигуру на несколько самых просты и подсчитать их по отдельности. Нижняя часть – это прямоугольник с размерами 2, 5 метра на 4, 2 метра. Перемножаем эти цифры и получаем площадь 10, 5 квадратных метров. Учитывая, что площадь окна у вас чуть больше одного квадратного метра, площадь станет меньше на 1 кв.м., то есть 9, 5 квадратных метра. Верхнюю часть торцевого сечения имеет смысл поделить на один прямоугольник с длиной 1200 мм (он занимает центральное положение в фигуре и одинаковых треугольника с гипотенузой 1800 мм т нижним катетом 1500 мм. Откуда 1500 появилось? Это я из 4200 мм вычел 1200 мм и поделил пополам. А как узнать высоту этой фигуры? Великий Пифагор решил это за нас – спасибо великому греку. То есть 1800² — 1500² получаем практически высоту равную одному метру. Итак, площадь верхней части сечения равна 1200 мм х 1000 мм +1500 х 1000 мм все это равняется 2, 7 квадратных метров. Теперь ранее полученную площадь равную 9,5 квадратных метров суммируем с полученными 2, 7 получаем 12, 2 квадратных метров. Но ведь у нас два торца, значит, удваиваем эту величину, то есть имеем на торцах площадь около 24, 5 кв. метров. Остался последний шаг – ранее подсчитанные 65 квадратных метров суммируем с «торцевыми» 24, 5 кв. метров и получаем 90 метров квадратных.
Итак, Елена, я на каждом шаге делал небольшое увеличение, чтобы не промахнуться с расчетом. Вы можете его сами повторить и уточнить площадь.

Берегите утеплитель, не храните его так бесхозяйственно.
Берегите утеплитель, не храните его так бесхозяйственно.
Теперь о толщине теплоизоляции. А ведь это самый денежный вопрос. Для вашего региона, да и для условий мансарды сердце не поворачивается назвать вам цифру меньше 300 мм. Но повторюсь, это для пиковых уральских морозов. Если вы обещаете в самый мороз сидеть дома и на мансарду ни-ни, то можно уйти на 250 мм.
Я сейчас посмотрел в Интернете цены на замечательный Роквул (но это только в качестве примера, а отнюдь не скрытая реклама. Так вот, пачка хорошего материала объемом 0, 288 кубических метров стоит 400 рублей. Чуть получше стоит 480 рублей. Давайте возьмем среднее значение в сети – 450 рублей.
Итак, вы решаете ставить утеплитель толщиной в 300 мм. Давайте подсчитаем, на какой объем материала вы претендуете. Ваши 90 квадратных метров умножаем на 0, 3 метра толщины получаем (тут и калькулятор не нужен) 27 кубических метров. А сколько пачек?
Делим 27 кубов на 0, 288 (в одной пачке), получаем 94 пачки. Осталось 94 пачки помножить на цену 450 рублей получаем 42300 рублей. Это все расходы? Отнюдь нет. Надо учесть и ветрозащиту, и пароизоляцию.
Ну и конечно, транспортировка. Тут тоже есть свои тонкости. На какой автомашине имеет смысл тащить эти 27 кубов? Конечно можно соблазниться могучими Камазами, Мазами и пр. Боюсь, мы оставим их без ваших денег. Дело в том, что это хорошие могучие автомобили могут возить тяжелые грузы. А вам ведь везти надо легкий, почти воздушный материал! Для чего соблазняться серьезным транспортом? Поищите ДЛИНОБАЗОВЫЕ ГАЗЕЛИ. Предполагаю, что она сможет это утащить. По крайней мере, вопрос транспортировки надо держать в уме и не оставлять на последний момент, чтобы не переплачивать лишние деньги.
Итак, Елена, я закончил расчет, о котором говорил неделю назад. Сами пожалуйста подсчитайте и уверьтесь, что все – сходится.
Два слова для скептиков, свободно владеющих подобными расчетами. Я специально расписал в деталях алгоритм подсчета для нашей читательницы из Озерска, чтобы было все до предела ясно. Разумеется, все это можно было ужать, но тогда бы мы потеряли ясность в размерах, коэффициентах и пр.

Практически ваш, Елена, случай
Практически ваш, Елена, случай
Доброе утро ВСЕМ! Заметил у себя вчерашнего одну описку. В первом вчерашнем посте вместо слов «формулу для расчета площади круга 2 πR» следует читать «формулу для расчета длины окружности 2 πR» Бывает!
Добрый вечер, Олег! Спасибо Вам за ответ. Да, действительно, начертила не совсем правильно. Вы совершенно верно заметили мою ошибку. Всё расписано очень подробно. Вернусь к стропилам, если они шириной 140мм, то при утеплители 300 нужно их нарастить где то на 180мм? Ещё меня волнует вопрос по поводу расстояния между стропилами, оно у меня не 600, а 1000. Как в таком случае быть? Ещё раз спасибо.
Добрый вечер Елена! Я тут нашел именно для вас фотографию внешнего вида утепленной мансарды. именно той, о которой я говорил, что у нее отсутствует горизонтальный участок потолка и наклонные стены уходят далеко во Вселенную. Извините, ближе к объективу фотографии не нашел. Так вот, у владельцев была возможность заметно урезать высоту мансарды, метра полтора уж точно. Этим бы владельцы заметно бы сократили расходы на отопление. Ведь воздух, теплый воздух, подогретый, скапливается как раз в этом верхнем конусе, а жильцам эта теплота не передается. Тое сть с точки зрения теплоэффективности — решение неудачное, однако эмоциональное впечатление, от уходящих в небеса скатов крыши перекрывает указанный технологический недостаток. Так что, если вы с мамой еще не решили мансардного вопроса, можно обсудить этот мой вечерний пост.
Удачи.
Остроконечная крыша мансарду
Остроконечная крыша мансарду
Добрый вечер Елена! Рад, что мы смогли придти к консенсусу по поводу уточнения размера наклонного участка потолка мансарды. Теперь берусь за ответы на ваши сегодняшние вопросы. Касательно наращивания ширины стропил. Вопрос, признаться, мне совсем не ясен — вы ведь делаете «пенальный» вариант мансарды и собираетесь утеплять именно пенал, а не крышу которая держится на НАКЛОННЫХ стропилах. Тогда вопрос укладки теплоизоляции между НАКЛОННЫМИ стропилами вообще исчезает. Или я что-то не «догоняю»? Тем не менее, не хочу повторяться, а крайне рекомендую прочесть эту статью об утеплении мансарды.https://7dach.ru/Oleg_Sanko/kak-uteplit-skatnuyu-kryshu-ne-snimaya-krovli-86026.html. На фотографиях статьи изображен мастер, он же реальный автор повествования. В его случае то же пришлось заметно УШИРЯТЬ стропила. Там есть немало подходящих фотографий. Давайте Вы, Елена, ту статью прочтете и мы вернемся к обсуждению уширения стропил.
Теперь о вашем сомнении в том, как засунуть теплоизоляционную плиту шириной в 600 мм в зазор между стропилами величиной в 1000 мм. Это мне подсказывает то, что вы еще не смотрели информацию о своем будущем приобретении – теплоизоляционных плитах.
Если вы откроете в поиске приобретение теплоизоляции, скажем «Роквула», то увидите такие размеры плиты 1000 х 600 х 50 мм. А у «Технониколь» 1200 х600 х50 мм. у «Изовера» – 1200 х……., а у «Изовола» 1000 х600 х 50 мм. То есть ваши плиты придется ставить не вертикальном положении, а в горизонтальном. То есть круг претендентов на ваши дачные деньги – сужается. Вам надо приобретать материал, у которого максимальный размер, то есть длина равняется 1000 мм. Еще раз, Елена, СОВЕРШЕННО ИСКРЕННЕ рекомендую вчитаться в вышеуказанную статью.

Натягивание пароизоляционной мембраны
Натягивание пароизоляционной мембраны
Доброе утро, Олег! По поводу ширины утеплителя 600 мм, это я просто зациклилась после прочтения статей, где именно этот размер указан. Что касается утепления пенала или от утепления от стропил, то этот вопрос возник из-за спора с мамой. Она считает, что не надо уменьшать мансарду. Указанную статью обязательно внимательно прочитаю. Спасибо.
Доброе утро, Елена! Действительно, я вас понимаю, что реально можно ЗАЦИКЛИТЬСЯ на регулярно повторяющейся цифре — шестьсот сантиметров. Всегда подразумевается новое строительство, а о реконструкции старых дачных построек повествований на порядок меньше. С другой стороны я вижу в этом свой недочет и в дальнейшем буду делать ссылку, что 600 мм, это классика, но любое отхождение от нее тоже возможно. Более того, реально современно утепленные мансарды начали появляться в России только с появлением этих самых теплоизоляционных плит от разных производителей. Рискну выразить мнение, что именно размер этих плит теперь «задает» моду на размер между стропилами в 600 мм. А до середины 90-х годов, когда мы и слыхать не слыхивали об этих утепляющих плитах, размер между стропилами определялся их несущей способностью, зависящей от выбранного сортамента древесины под стропила.
Касательно мнение вашей матушки добавлю, что она частично права. Касательно использования всего объема пока еще холодного чердака. Выскажу сугубо свое «дачниковое» мнение, на секунду снимая с себя нимб «эксперта». Мое оценочное мнение барражирует где-то между мнением вашей матушки и вашим. То есть вертикальные стенки высотой по 2,5 метра я бы оставил бы в покое в вашем варианте, но не делала бы горизонтального потолка по маминому варианту. Я бывает ночую у близких родственников на мансарде и вы знаете, Елена, так хорошо глядеть с тахты на сужающийся клином где-то в поднебесье потолок.
Счастливо и с праздниками. Если начнете строительство — к вам колоссальная просьба — «нащелкайте», пожалуйста, много фоток и выложите прямо тут, на этом посте. Реально поможете многим десяткам ваших последователей со всех краев нашей страны.
Добрый вечер, Олег! Только приехали из сада, смотрю, а Вы уже ответили мне. Спасибо. Хотела нафотографировать мансарду, какая она у нас сейчас, но что-то все так «наотдыхались», что поехали скорей домой. Спор с мамой по поводу утепления мансарды так у нас сегодня ничем не закончился. Сейчас прочитаю ей все ваши рекомендации и тогда решим. Ещё раз спасибо.
МАМЕ — привет!
Спасибо, передам!

Пожалуйста, оставьте комментарий

Внимание! Если у вас есть свой вопрос, задайте его отдельно, в специальной форме
Или через: